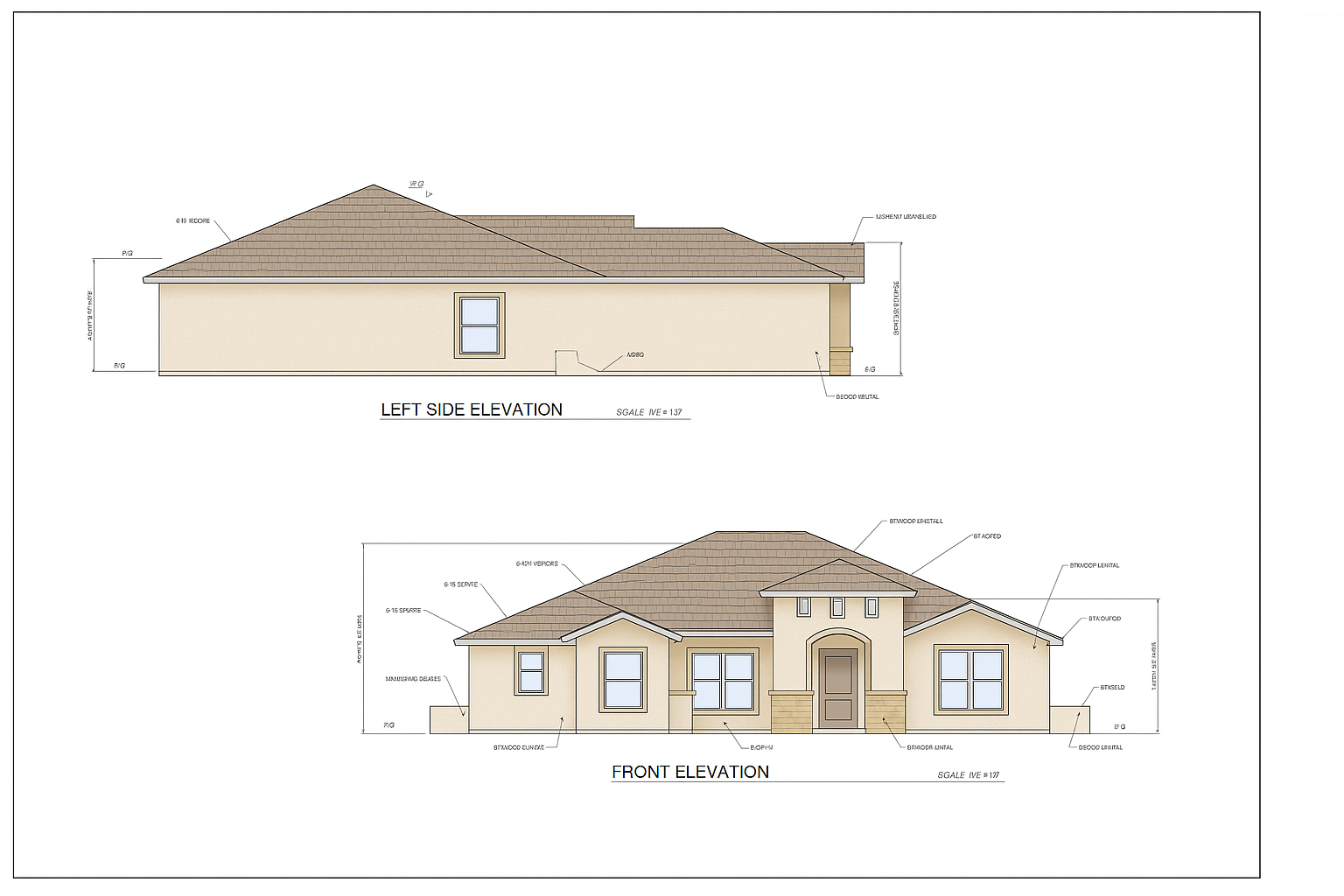
Redline Markup Services


Redline Markups involve annotating drawings with changes, corrections, or revisions, commonly used in fields like construction, architecture, and engineering. These annotated documents act as an essential communication tool between project teams, highlighting necessary modifications to be included before finalizing the plans. Redline markups are critical for preserving a project’s accuracy and integrity, preventing costly mistakes, and ensuring all parties involved are aligned during the execution phase.

Precision in Corrections


Our Redline Markup Services are designed to deliver the highest level of precision. Whether it's minor tweaks or major revisions, we ensure that every change is accurately captured and incorporated into your drawings. We work closely with you to understand your corrections, ensuring no detail is overlooked. By leveraging industry-standard practices and advanced tools, we provide error-free updates, maintaining the integrity of your designs.

Quality Control


At the core of our Redline Markup Services is a commitment to quality and accuracy. We understand the importance of making precise adjustments to drawings, which is why our team follows strict quality control procedures to ensure that each markup is correct and consistent. We perform thorough checks to verify that all revisions are accurately reflected in the final drawings, ensuring your project remains error-free and ready for the next phase of construction.

Timely Turnaround


Time is critical in any project, and we prioritize fast and efficient redline markup services without compromising on quality. With our streamlined process, we deliver the updated drawings in a timely manner, helping you stay on schedule and avoid delays. Whether you need a quick turnaround for urgent projects or regular updates, our team is equipped to handle it efficiently, allowing you to meet deadlines and keep your project moving forward.

Expand Your Project Capacity Without Increasing Internal Overhead or Operational Risk.

Review Capacity Options

Increase production bandwidth, eliminate execution bottlenecks, and scale delivery with confidence
while protecting margins and maintaining performance standards.

Collaboration


We believe in a collaborative approach to redline markups, which is why we offer easy communication channels for you to share your feedback and corrections. Whether through digital markup tools, email, or other collaborative platforms, our process ensures that every change is clearly communicated. We actively engage with you to clarify any queries, minimizing the chances of mistakes and ensuring that the final drawings meet your expectations.

Expertise in Formats


We offer flexibility by supporting a wide range of file formats, including CAD (DWG, DXF), PDF, and Revit files. Our team is proficient in handling various formats, ensuring that no matter your software or tools, we can accurately implement your redline annotations. This versatility enables us to seamlessly integrate with your workflow, providing a hassle-free experience for your team, regardless of the design software being used.

Redline Markup Projects

What Our Clients Say

Avatar

“They saved us $320k by detecting clashes we missed. Our project stayed on budget and ahead of schedule.”

★★★★★ 5.0

Michael Turner

VP, Skyline Construction

Avatar

“The 5-Point Audit opened our eyes to inefficiencies costing 12% of staff hours. Fixed in weeks.”

★★★★☆ 4.0

Sarah Mitchell

Director, ArchiForm Studio

Avatar

“We avoided $450k in rework costs on a hospital project. Their clash detection was a game-changer.”

★★★★★ 5.0

David Chen

Senior Project Manager, MedBuild Group

Avatar

“Their audit showed us errors that would have delayed delivery by 3 months. We finished 27% faster instead.”

★★★★☆ 4.0

Priya Nair

Principal Architect, UrbanHomes Design

Avatar

“We reduced our MEP coordination issues by 40%. That alone saved us $180k on a single project.”

★★★★★ 5.0

James Rodriguez

Head of Engineering, CoreMEP Solutions

Avatar

“Our bidding accuracy improved overnight. We now win projects with 20% tighter estimates—with zero margin surprises.”

★★★★☆ 4.0

Linda Brooks

Estimation Lead, Prime Contractors Inc.

Avatar

“The BIM model caught 38 clashes in our structural design. That saved weeks of onsite chaos and $220k+ in labor costs.”

★★★★★ 5.0

Omar Al-Farouk

Director of Operations, SteelMax Contractors

Avatar

“They helped us save just $55k on a small residential project. But for us, that covered nearly our entire profit margin.”

★★★★☆ 4.0

Emily Davis

Owner, GreenLeaf Builders

Avatar

“Before, we spent months fixing mistakes onsite. With their workflows, we reduced field errors by 60% and saved $500k.”

★★★★★ 5.0

Robert Klein

VP, Horizon Development Group

Frequently Asked Questions

Redline Markup is the process of digitally marking revisions, corrections, and comments on drawings to improve accuracy and communication.
Architects, engineers, contractors, and designers use Redline Markups to review, modify, and approve design changes efficiently.
We work with PDFs, DWGs, and BIM models, ensuring clear annotations and revisions directly on your construction documents.
It streamlines communication, reduces errors, enhances collaboration, and ensures all stakeholders work with the latest revisions.
+ Do you provide digital or hand-drawn markups?
We offer both digital markups using software like Bluebeam and hand-drawn annotations based on project requirements.
+ What details can be marked up?
We annotate dimensions, design changes, material modifications, clash detections, and compliance issues for better project clarity.
+ How long does the Redline Markup process take?
Turnaround times vary by project size and complexity, but most markups are completed within 24 to 72 hours.
+ What industries use Redline Markup services?
Construction, architecture, engineering, and facility management rely on Redline Markups for accurate design revisions and approvals.
+ What is the cost of Redline Markup services?
Pricing depends on document size, complexity, and volume—contact us for a tailored quote based on your project needs.
+ How do I get started with Redline Markup services?
Send us your project files, and we’ll review them, apply precise markups, and deliver updated documents quickly.

Scale Your Operations With Greater Control, Precision, and Execution Confidence.

Explore Partnership Model

Strengthen your delivery infrastructure, increase output capacity, and support larger project pipelines
without expanding your internal workforce.

Bimgraphix is a global BIM and digital engineering firm delivering precision-driven solutions to
architects, engineers, and construction partners across global markets.

Projects   Industries   Process   About Us   Careers   Privacy   Contact


© 2025 Bimgraphix Infotech. All Rights Reserved.