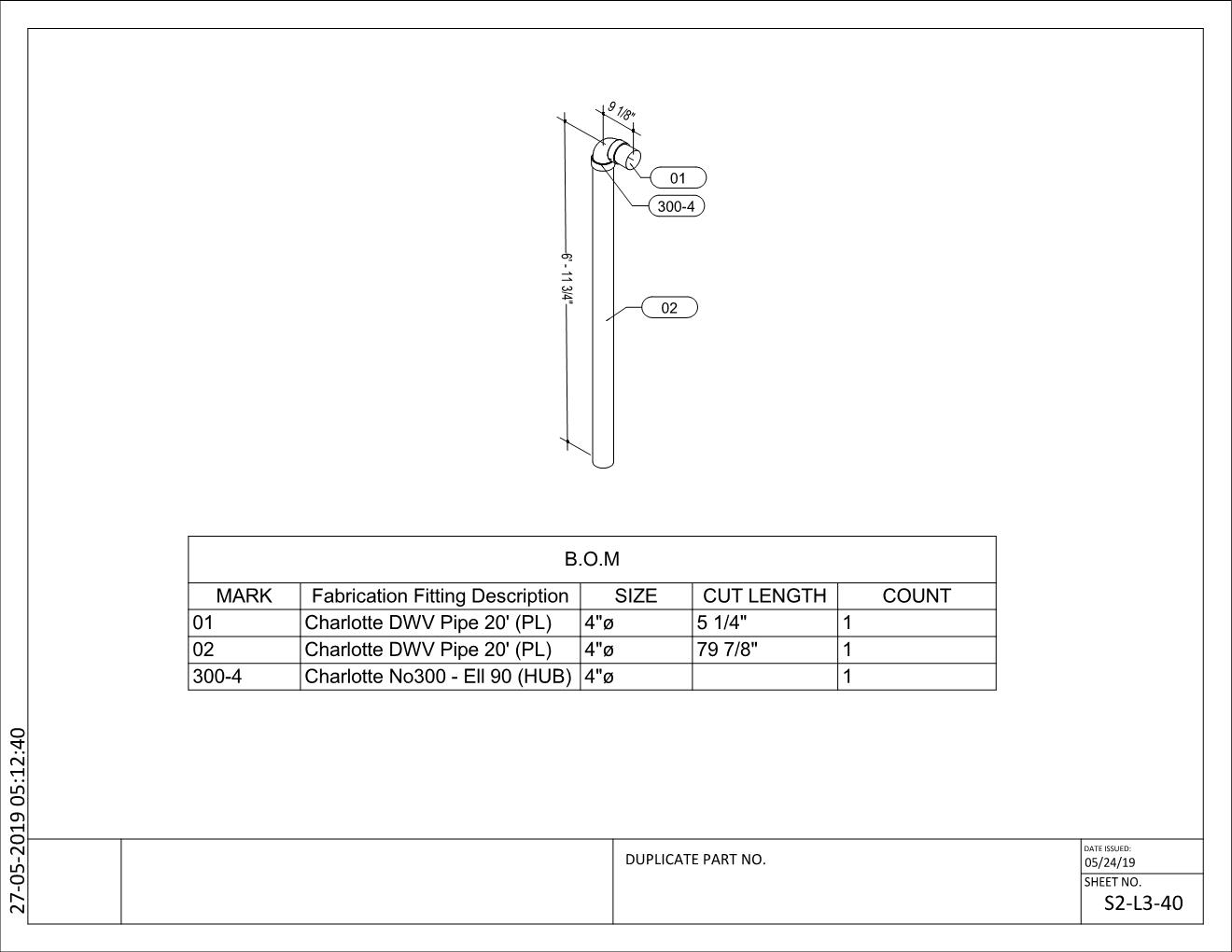
Spool Drawings

Spool is an assembly of pipe with associated components that can be pre-fabricated in the workshop and then shipped to site for installation. Plumbing spool drawing acts as a guide to plumbers to understand what they are dealing with. A pipe assembly split into different components are spools.

These spools connect at various locations within any given structure. A pipe spool drawing is optimized to provide all the information required by fabricator to accurately pre-fabricate or assemble the spool. Spool drawing furnishes the detailed information of parts welded together in the shop on a single spool drawing.

Our piping spool drawings services include 3D drawings for shop drawings, Isometric Drawing, assembly drawings, As-built models and 2D Cad fabrication drawings. Our MEP detailers are specializing in converting mechanical drawings for pipe fabrication into parametric 3d drawings.



Our Spool Drawings Services includes Followings.

  • Shop drawings with Bill of Materials.
  • Isometric Spool drawings with Bill of Materials.
  • 2D CAD drawings for general piping diagrams.
  • Isometric drawings for Plant Room.
  • Connections between systems with sequence.
  • HVAC Layout, plant room general arrangement Drawing.
  • Spooling drawings in Revit or Cad