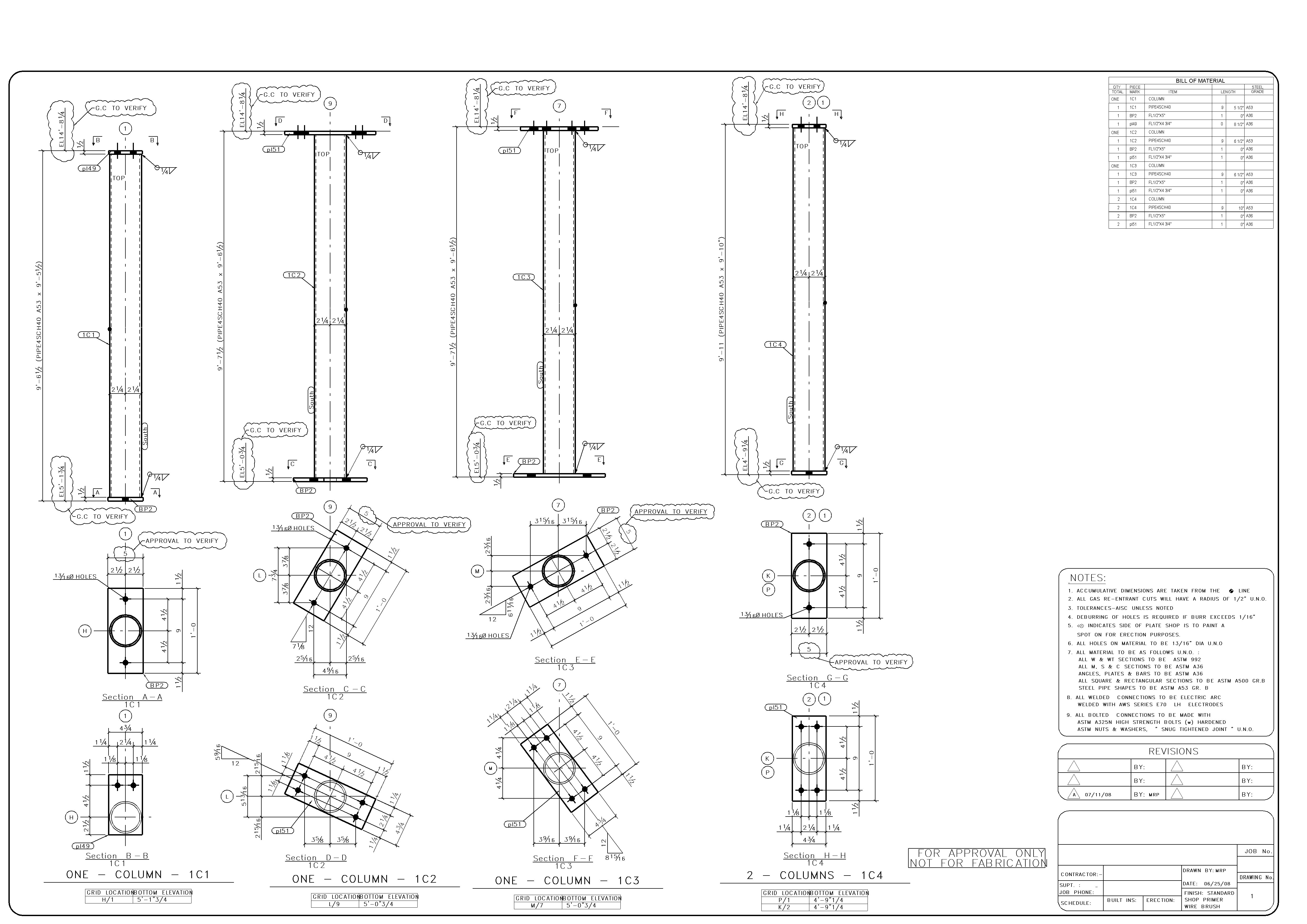
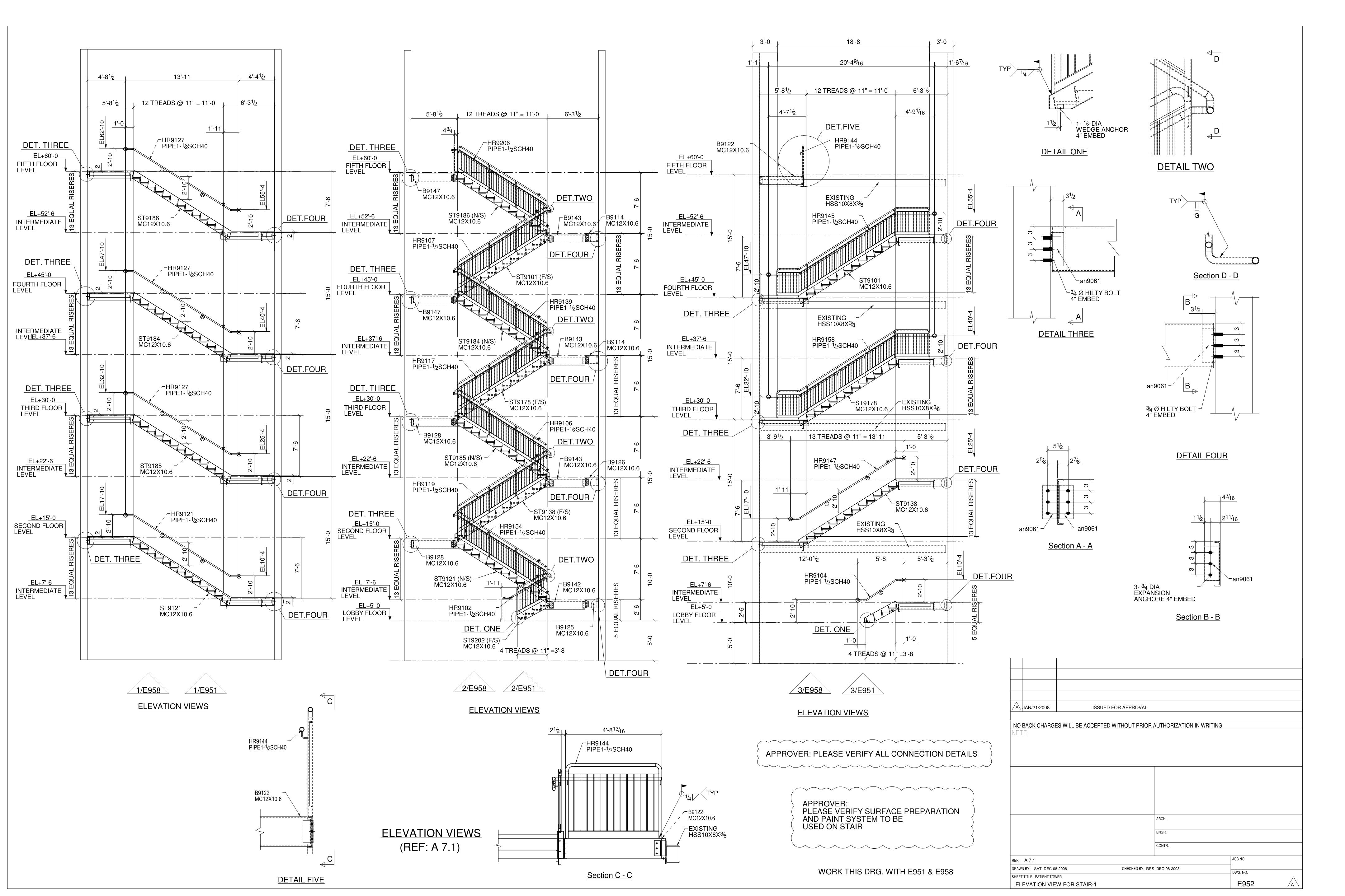
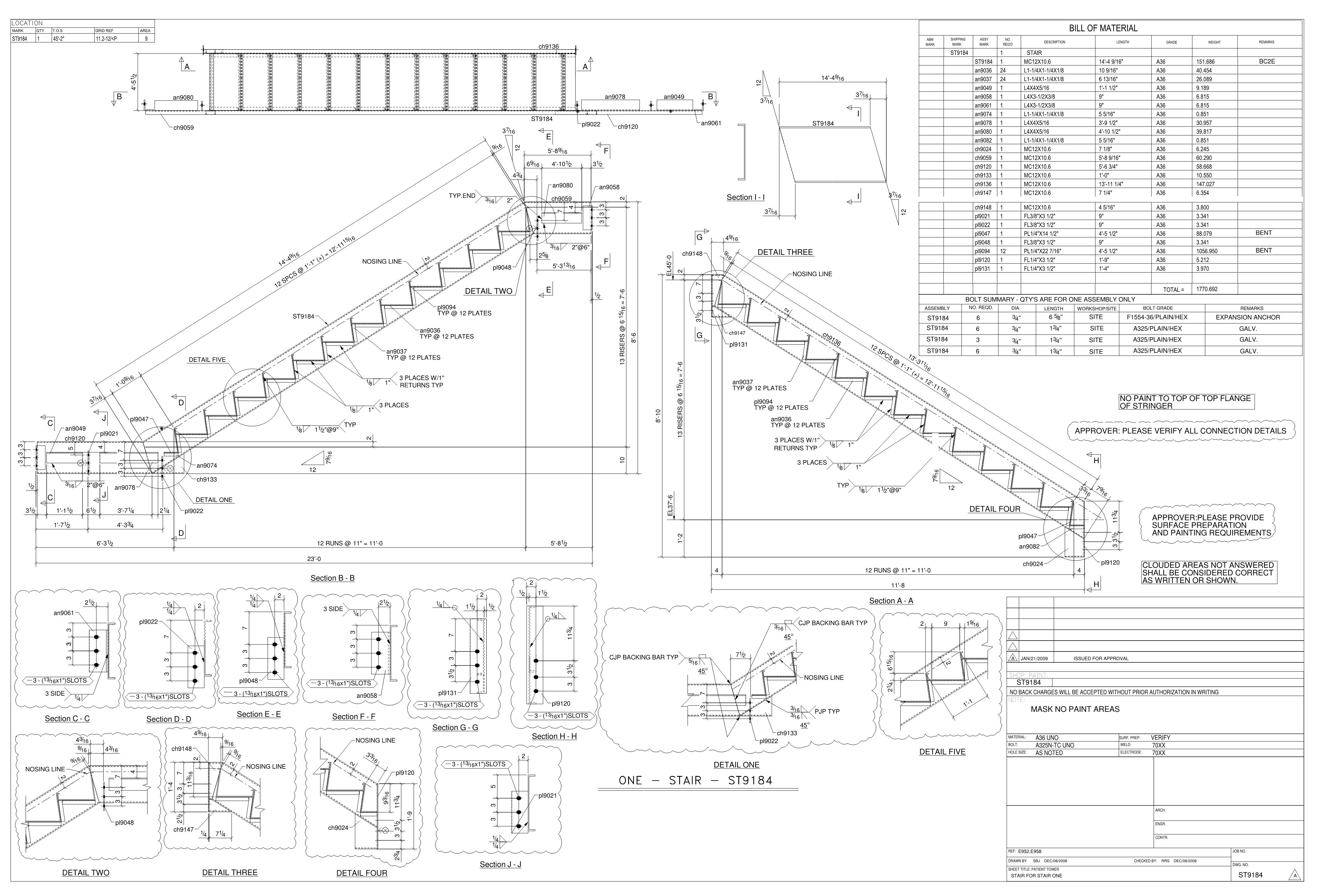
Steel Detailing

We provide comprehensive steel detailing services to wide range of clients ranging from fabricators, contractors, designers, and structural engineers. We specialize in quality steel detailing. Our experienced team of experienced steel detailers, Project Managers, are specializing in international Steel detailing standards – AISC, ANSI. This enhances our capability to deliver steel detailing services with highest level of accuracy and precision.

Our steel detailers are specializing in Latest versions of software’s which includes Tekla Structures, SDS, AutoCAD & Advance Steel. The accuracy in the steel detailing streamlines the task at the site location for the workers. Structural steel detailing saves time and money at your workshop as well as the site location reducing overall installation cost.

We perform dual level of quality check on each steel detailing sheet to ensure we are delivery error free steel detailing drawings to our clients. We work as a team members with our client that’s why we follow client submission dates very strictly and delivers projects on or before agreed submission dates.



Our Steel Detailing Services Include Followings.

  • Structural and Miscellaneous Steel Detailing
  • 3D Structural Steel Modeling
  • Shop Fabrication drawings
  • Framing Plans & Erection Drawings
  • Structural Steel Connection Design
  • BOM (Bill of Materials)
  • Anchor bolt setting plans and details
  • CNC files for shop fabrication
  • Embedded material plans and details
  • Quality take-off services
  • Advanced Bill of Materials (ABM)
  • Steel Joist & Deck Detailing